Trilocale in vendita

Milano, Via Ortica - Ortica
€ 450.000
3 locali 3 locali
102 Mq 102 Mq
2 bagni 2 bagni

Trilocale in vendita

Milano, Via Ortica - Ortica

Descrizione annuncio

Nel cuore autentico di Via Ortica, uno dei quartieri più vivaci e in trasformazione di Milano, dove storia industriale e creatività contemporanea si incontrano tra murales iconici, botteghe di quartiere e locali dal sapore unico, proponiamo una soluzione abitativa che unisce carattere e comfort.


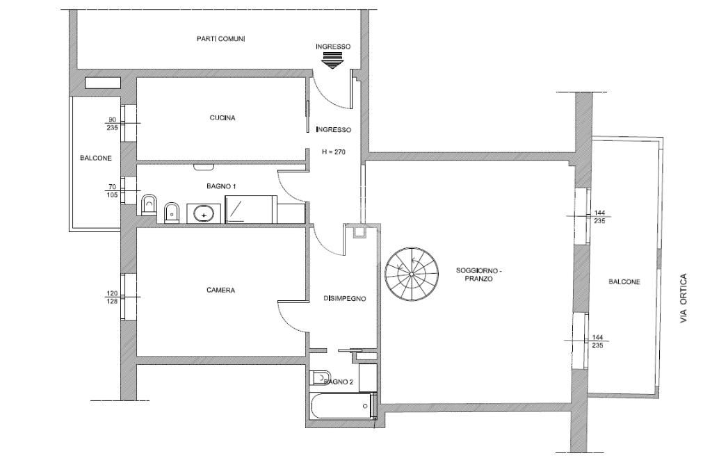
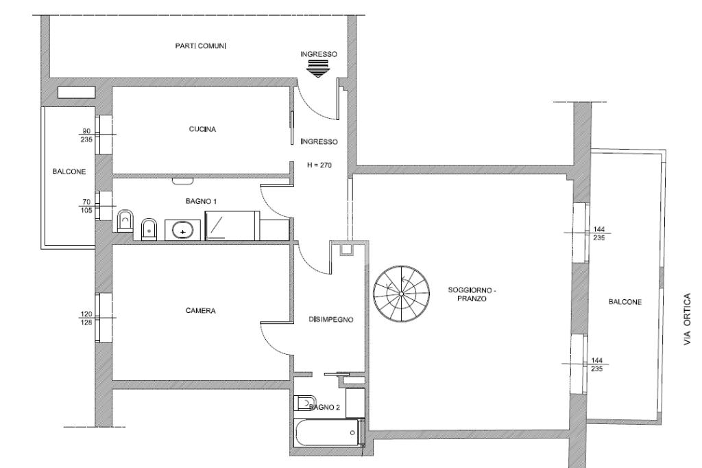
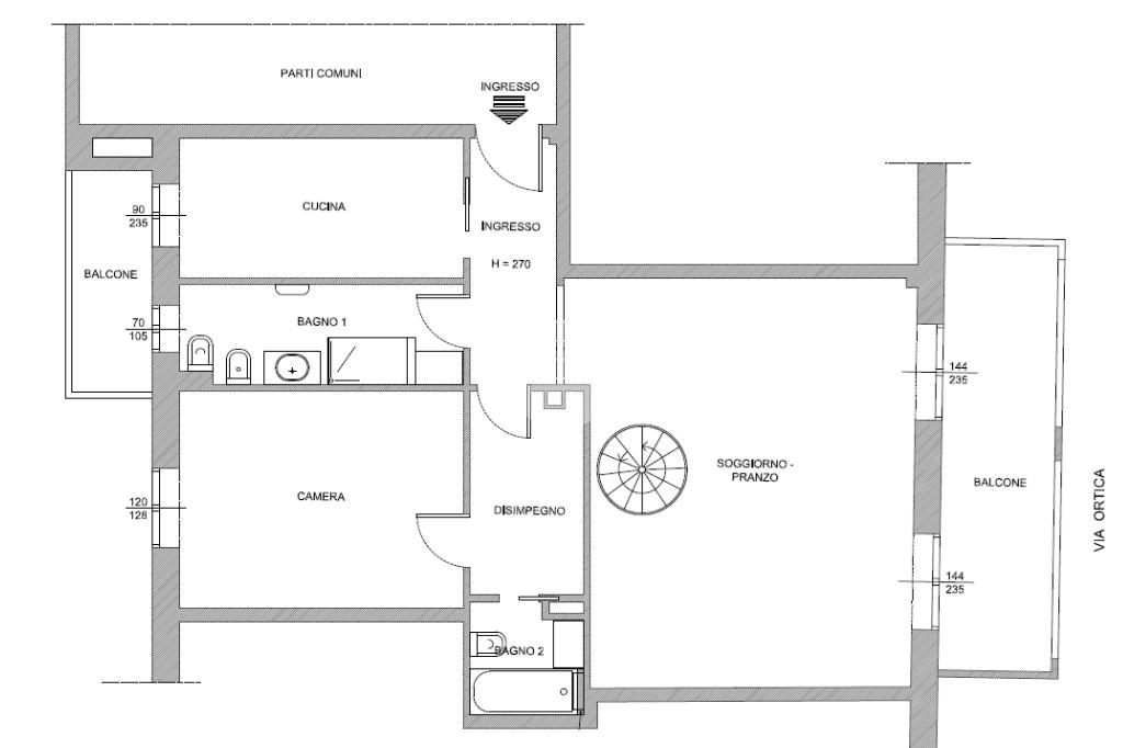
All’interno di una tranquilla mini palazzina dei primi anni ’90, questo appartamento su due livelli, posto al 3° e 4° piano, accoglie con spazi ampi e luminosi pensati per essere vissuti.


L’ingresso si apre su un elegante soggiorno doppio, ideale per momenti di convivialità o relax, impreziosito dall’affaccio su una grande loggia: uno spazio prezioso dove godersi un caffè al mattino o una serata all’aperto. La cucina abitabile invita a vivere la casa in modo autentico e quotidiano, mentre la prima ampia camera e i doppi servizi – uno finestrato con doccia e uno con vasca – garantiscono praticità e comfort.


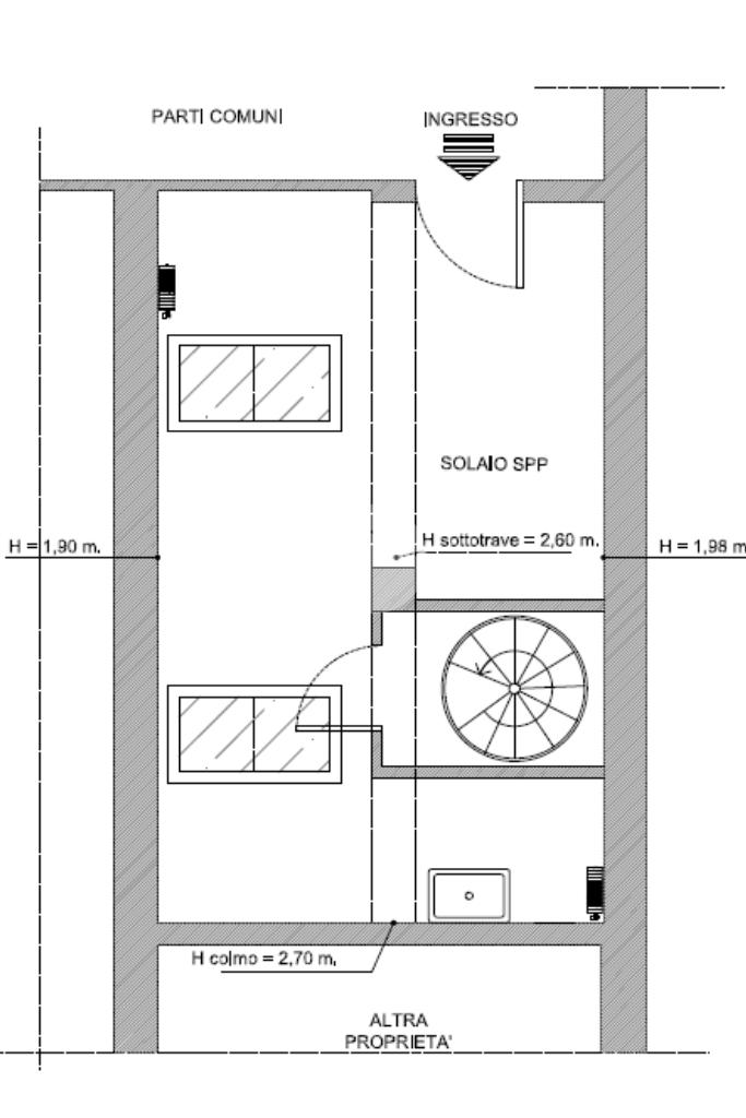
Salendo al piano superiore si viene accolti da una spaziosa camera matrimoniale, un ambiente intimo e riservato, completato da un comodo bagno di servizio/lavanderia.


La proprietà è completata da una cantina e dalla possibilità di un box nello stabile (€ 35.000), un valore aggiunto importante in zona.
Le ottime finiture, la distribuzione su due livelli e la posizione in un quartiere dinamico e sempre più ricercato rendono questa casa una soluzione ideale per chi cerca qualcosa di unico, capace di raccontare una storia e offrire qualità della vita.

Non perdere questa occasione unica! Prenota subito una visita inviando un messaggio WhatsApp al numero: 344.1530629 o chiamando direttamente al 02.84961200.

Le immagini e la descrizione dell’immobile presenti sul sito web sono puramente indicative e non costituiscono elemento contrattuale.

Mostra tutto

Nelle vicinanze

Trasporto pubblico Trasporto pubblico
Lambrate FS
Lambrate FS
1,6 Km
Piola
Piola
1,8 Km
stazione di Milano Lambrate
stazione di Milano Lambrate
1,6 Km
stazione di Milano Porta Vittoria
stazione di Milano Porta Vittoria
2,0 Km
Ortica
Ortica
520 m
Ricariche auto elettriche Ricariche auto elettriche
MediaWorld Rubattino
1,0 Km
EnelX EVAD Sede Enel MI Rubattino
1,2 Km
PoliMi - Dipartimento di Elettronica
1,2 Km
A2A Pacini
1,6 Km
A2A PoliMi
1,7 Km
Scuole Scuole
Scuole
270 m
Scuola Media Giovanni Pascoli
620 m
Istituto Professionale Alberghiero
650 m
Andersen International School
750 m
Università degli Studi di Milano
990 m
Farmacia Farmacia
A.F.M. Comunale N.22
160 m
Farmacia Amadeo
730 m
Città Studi
740 m
Farmacia
750 m
Parafarmacia Esselunga
780 m
Ospedali Ospedali
Istituto Nazionale dei Tumori
1,1 Km
Istituto Neurologico Carlo Besta
1,3 Km
Ospedale Macedonio Melloni
2,0 Km
Istituto Clinico Città Studi
2,1 Km
Supermercati Supermercati
Esselunga di via Rubattino
810 m
Ok Sigma
920 m
LD Market
1,0 Km
Lidl
1,1 Km
Sigma
1,1 Km
Negozi Negozi
Dolce e salato
760 m
Negozi
790 m
Ticozzi
850 m
Mediterranea 2
910 m
Carrefour Express
1,1 Km
Bar Bar
Bar Oratorio San Carlo
590 m
The Beach
850 m
Bar
870 m
amnesia
950 m
Hypnotic Bar
950 m
Ristoranti Ristoranti
Il Giardino della Birra
100 m
La Balera dell'Ortica
280 m
La Galeria
460 m
Ristoranti
650 m
Lo Smeraldo
760 m
Mostra tutto

Caratteristiche

Rif.:
61211483
Piano:
3 di 4 con ascensore (Piano su più livelli)
Box:
1
Balconi:
1
Terrazzi:
1
Camere da letto:
2
Mostra tutto
Prezzo Prezzo
€ 450.000
Prezzo box Prezzo box
€ 35.000
Rata mutuo Rata mutuo
€ 2.133 / mese
Spese annue Spese annue
€ 1.750
Proponi il tuo prezzoProponi il tuo prezzo

Classe Energetica

F
F
F
F
F
F
F
F
F
EP globale non rinnovabile:
247.96 kW h/m² anno
EP globale rinnovabile:
247.96 kW h/m² anno
EP invernale del fabbricato:
EP estiva del fabbricato:
Anno di costruzione:
1990
Riscaldamento:
Autonomo
Tipo impianto:
A radiatori
Tipo alimentazione:
Altro

Ti interessa visionare l'immobile?

Fissa un appuntamento  Fissa un appuntamento

Richiedi informazioni

Clicca su Leggi per aprire l'informativa
* Questi campi sono obbligatori

Calcola il tuo mutuo

Semplice e senza impegno
Anticipo

( % )
Mutuo

( % )

pochi semplici passi

inserisci i tuoi dati
Questionario completato
Grazie per aver richiesto un appuntamento senza impegno con un nostro Consulente del Credito e Assicurativo.

Hai inserito correttamente tutti i dati necessari e a breve riceverai una e-mail con un link da convalidare per inviare i tuoi dati.
Affiliato
Milano Lambrate Srl
Viale Delle Rimembranze Di Lambrate, 15 20123 Milano (MI)

Il nostro staff


  • David Troiani
    Affiliato

  • Sergio Colombo
    Collaboratore

  • Davide La Camera
    Affiliato
Viale Delle Rimembranze Di Lambrate, 15 20123 Milano (MI)
Zona: Lambrate-Rubattino
Mostra su mappa
Orari: Da Lunedì a Venerdì dalle 09:00 fino alle 20:00 ed il Sabato dalle 09:00 fino alle 18:00
Affiliato
Milano Lambrate Srl
Viale Delle Rimembranze Di Lambrate, 15 20123 Milano (MI)

2026 Tecnocasa Franchising S.p.A. - P. IVA 08365160152 - Via Monte Bianco 60/A 20089 Rozzano (MI). Ogni agenzia ha un proprio titolare ed è autonoma. Privacy policy | Policy utilizzo | Cookie policy