Bilocale in vendita

Milano, Via Corelli - Ortica
€ 155.000
2 locali 2 locali
58 Mq 58 Mq
1 bagno 1 bagno

Bilocale in vendita

Milano, Via Corelli - Ortica

Descrizione annuncio

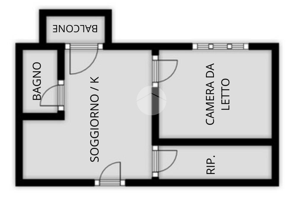
LUMINOSO BILOCALE CON BALCONE

Proponiamo in vendita luminoso appartamento bilocale di 58 mq da personalizzare, situato al primo piano di una caratteristica palazzina anni ’50.

L'appartamento è composto da un luminoso soggiorno con cucina a vista, una spaziosa camera da letto matrimoniale, bagno con box doccia e un ampio ripostiglio. Inoltre, annesso alla zona giorno abbiamo un balcone con affaccio esterno.

L'immobile è in una zona tranquilla e residenziale di Milano, ben collegato con i mezzi pubblici (fermata autobus sotto casa), circondato da tutti i principali servizi.

Ottimo per uso investimento.

-le immagini 3D sono renderings di una versione ristrutturata dell'immobile e non rappresentano lo stato attuale-

La posizione strategica consente di raggiungere facilmente e in modo rapido punti come la metropolitana di Lambrate in pochi minuti, la Tangenziale Est, l’Aeroporto di Linate, il Politecnico di Milano, l’Ospedale San Raffaele, ecc.

Non perdere questa occasione unica! Prenota subito una visita inviando un messaggio WhatsApp al numero: 344.1530629 o chiamando direttamente al 02.84961200.

Le immagini e la descrizione dell’immobile presenti sul sito web sono puramente indicative e non costituiscono elemento contrattuale..

Mostra tutto

Nelle vicinanze

Trasporto pubblico Trasporto pubblico
Lambrate FS
Lambrate FS
1,9 Km
Piola
Piola
2,2 Km
stazione di Milano Lambrate
stazione di Milano Lambrate
1,8 Km
rifornimento
rifornimento
1,8 Km
Ortica
Ortica
960 m
Ricariche auto elettriche Ricariche auto elettriche
EnelX EVAD Sede Enel MI Rubattino
850 m
MediaWorld Rubattino
990 m
PoliMi - Dipartimento di Elettronica
1,6 Km
A2A Pacini
1,8 Km
A2A PoliMi
2,0 Km
Scuole Scuole
Scuole
230 m
Istituto Professionale Alberghiero
1,0 Km
Scuola Media Giovanni Pascoli
1,1 Km
Andersen International School
1,2 Km
Istituto comprensivo A. Scarpa
1,3 Km
Farmacia Farmacia
A.F.M. Comunale N.22
320 m
Parafarmacia Esselunga
750 m
Farmacia Rubattino
940 m
Città Studi
1,2 Km
Farmacia
1,2 Km
Ospedali Ospedali
Istituto Nazionale dei Tumori
1,5 Km
Istituto Neurologico Carlo Besta
1,6 Km
Istituto Clinico Città Studi
2,4 Km
Ospedale Macedonio Melloni
2,5 Km
Supermercati Supermercati
Esselunga di via Rubattino
780 m
Lidl
1,2 Km
Ok Sigma
1,4 Km
LD Market
1,4 Km
Sigma
1,5 Km
Negozi Negozi
Dolce e salato
1,2 Km
Negozi
1,2 Km
Il forno delle delizie
1,2 Km
Panetteria Vaccari Roberto
1,3 Km
Ticozzi
1,3 Km
Bar Bar
The Beach
420 m
Bar
830 m
Bar Oratorio San Carlo
1,0 Km
amnesia
1,2 Km
Acli
1,3 Km
Ristoranti Ristoranti
La Galeria
10 m
El Galet
440 m
Il Giardino della Birra
550 m
Ristoranti
570 m
La Balera dell'Ortica
730 m
Mostra tutto

Caratteristiche

Rif.:
61116080
Piano:
1 di 3 (Piano basso)
Balconi:
1
Camere da letto:
1
Arredamento:
Parziale
Condizionamento:
Assente
Mostra tutto
Prezzo Prezzo
€ 155.000
Rata mutuo Rata mutuo
€ 710 / mese
Spese annue Spese annue
€ 1.300
Proponi il tuo prezzoProponi il tuo prezzo

Classe Energetica

F
F
F
F
F
F
F
F
F
EP globale non rinnovabile:
175.00 kW h/m² anno
EP globale rinnovabile:
175.00 kW h/m² anno
EP invernale del fabbricato:
EP estiva del fabbricato:
Anno di costruzione:
1950
Riscaldamento:
Centralizzato
Tipo impianto:
A radiatori
Tipo alimentazione:
Altro

Ti interessa visionare l'immobile?

Fissa un appuntamento  Fissa un appuntamento

Richiedi informazioni

* Questi campi sono obbligatori

Calcola il tuo mutuo

Semplice e senza impegno
Anticipo

( % )
Mutuo

( % )

pochi semplici passi

inserisci i tuoi dati
Questionario completato
Grazie per aver richiesto un appuntamento senza impegno con un nostro Consulente del Credito e Assicurativo.

Hai inserito correttamente tutti i dati necessari e a breve riceverai una e-mail con un link da convalidare per inviare i tuoi dati.
Affiliato
Milano Lambrate Srl
Viale Delle Rimembranze Di Lambrate, 15 20123 Milano (MI)

Il nostro staff


  • David Troiani
    Affiliato

  • Sergio Colombo
    Collaboratore

  • Vincenzo Cammarano
    Collaboratore

  • Davide La Camera
    Affiliato
Viale Delle Rimembranze Di Lambrate, 15 20123 Milano (MI)
Zona: Lambrate-Rubattino
Mostra su mappa
Orari: Da Lunedì a Venerdì dalle 09:00 fino alle 20:00 ed il Sabato dalle 09:00 fino alle 18:00
Affiliato
Milano Lambrate Srl
Viale Delle Rimembranze Di Lambrate, 15 20123 Milano (MI)

2025 Tecnocasa Franchising S.p.A. - P. IVA 08365160152 - Via Monte Bianco 60/A 20089 Rozzano (MI). Ogni agenzia ha un proprio titolare ed è autonoma. Privacy policy | Policy utilizzo | Cookie policy